Generic placeholder image
Generic placeholder image
Generic placeholder image

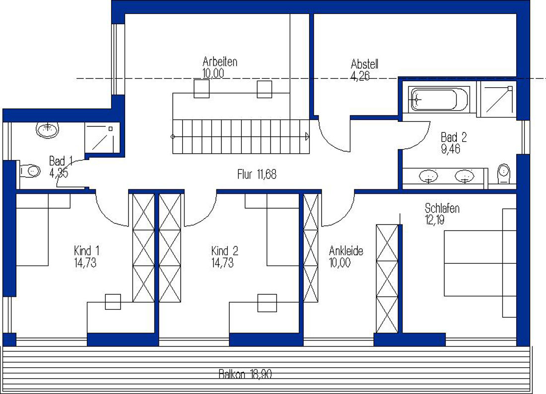
Haus Legno Grundriss OG

Generic placeholder image
Generic placeholder image
Generic placeholder image