Generic placeholder image
Generic placeholder image

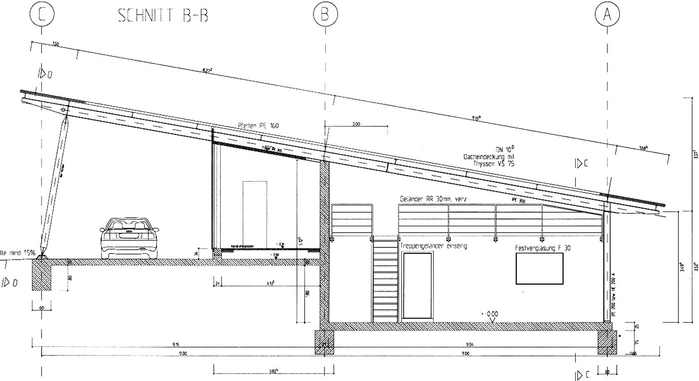
Galerie - Referenz - Gewerbebau Autowerkstatt Bad Waldsee

Generic placeholder image

Generic placeholder image
Generic placeholder image
Generic placeholder image

Generic placeholder image

Unsere Leistungen: Strategieberatung mit Verkauf, Marketing, Internetoptimierung und Verkäuferschulung für Hausbauunternehmen in Deutschland, Österreich und der Schweiz.


Generic placeholder image
Generic placeholder image
Generic placeholder image
Generic placeholder image
Generic placeholder image
Generic placeholder image